多介质过滤器是利用一种或几种过滤介质,在一定的压力下把浊度较高的水通过一定厚度的粒状或非粒材料,从而有效的除去悬浮杂质使水澄清的过程,常用的滤料有石英砂,无烟煤,锰砂等,主要用于水处理除浊,软化水,纯水的前级预处理等,出水浊度可达3度以下。
过滤的含义,在水处理过程中,过滤一般是指以石英砂、无烟煤等滤料层截留水中悬浮杂质,从而使水获得澄清的工艺过程。用于过滤的多孔材料称为滤料,石英砂是最常见的滤料。滤料有粒状,粉状和纤维状多种。常用滤料有石英砂、无烟煤、活性炭、磁铁矿、石榴石、陶瓷、塑料球等。
多介质过滤器(滤床),既采用两种以上的介质作为滤层的介质过滤器,在工业循环水处理系统中,用以去除污水中杂质、吸附油等,使水质符合循环使用的要求。过滤的作用,主要是去除水中的悬浮或胶态杂质,特别是能有效地去除沉淀技术不能去除的微小粒子和细菌等,BODs和COD等也有某种程度的去除效果。
性能参数如下表所示:
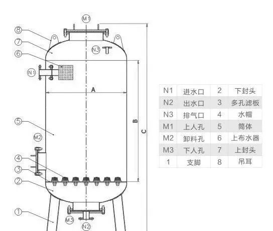
过滤器构成
多介质过滤器主要由过滤器体、配套管线和阀门构成。
其中过滤器体主要包括以下组件:简体;布水组件;支撑组件;反洗气管;滤料;排气阀(外置)等。
滤料的选择依据
必须有足够的机械强度,以免在反冲洗过程中很快地磨损和破碎; 化学稳定性要好; 不含有对人体健康有害及有毒物质,不含有对生产有害、影响生产的物质; 滤料的选择,应尽量采用吸附能力、截污能力大、产水量高、出水水质好的滤料。
在滤料中,卵石主要是起支撑作用,在过滤工艺过程中,因其强度高,相互之间的间距缝隙稳定,孔隙大,便于正洗工序中,滤后水顺利通过;同样,反洗工序中,反洗水和反洗空气等能顺利通过。常规配置中,卵石分为四种规格,铺垫方式为自下而上先大后小。
滤料的粒径和装填高度之间的关系
滤床的高度和滤料的平均粒径的比值为800~1 000(设计规范)。滤料的粒径的大小和过滤精度相关。
多介质过滤器
在水处理上使用的多介质过滤器,常见的有:无烟煤-石英砂-磁铁矿过滤器,活性炭-石英砂-磁铁矿过滤器,活性炭-石英砂过滤器,石英砂-陶瓷过滤器等。
多介质过滤器的滤层设计,主要考虑的因素为:
不同滤料具有较大的密度差,保证反洗扰动后不会发生混层现象。 根据产水用途选择滤料。 粒径要求下层滤料粒径小于上层滤料粒径,以保证下层滤料的有效性和充分利用。
事实上,以三层滤床为例,上层滤料粒径最大,有密度小的轻质滤料组成,如无烟煤、活性炭;中层滤料粒径居中,密度居中,一般为石英砂组成;下层滤料由粒径最小,密度最大的重质滤料组成,如磁铁矿。由于密度差的限制,三层介质过滤器的滤料选择基本上是固定的。上层滤料起粗滤作用,下层滤料起精滤作用,这样就充分发挥了多介质滤床的作用,出水水质明显好于单层滤料的滤床。而对于饮用水,一般禁止使用无烟煤,树脂等滤料。
石英砂过滤器
石英砂过滤器是一种采用石英砂作为滤料的过滤器。可有效去除水中的悬浮物,并对水中的胶体、铁、有机物、农药、锰、细菌、病毒等污染物有明显的去除作用。
其有过滤阻力小,比表面积大,耐酸碱性强,耐氧化,PH适用范围为2-13,抗污染性好等优点,石英砂过滤器的独特优点还在于通过优化滤料和过滤器的设计,实现了过滤器的自适应运行,滤料对原水浓度、操作条件、预处置工艺等具有很强的自适应性,即在过滤时滤床自动形成上疏下密状态,有利于在各种运行条件下保证出水水质,反洗时滤料充分散开,清洗效果好。
砂过滤器具有过滤速度快、过滤精度高、截污容量大等优点。广泛用于电力、电子、饮料、自来水、石油、化工、冶金、纺织、造纸、食品、游泳池、市政工程等各种工艺用水、生活用水、循环用水和废水的预处理领域。
石英砂过滤器设备结构简单、运行可以实现自动控制、处理流量大、反冲次数少、过滤效率高、阻力小、操作维修方便等特点。
活性炭过滤器
滤料为活性炭,用于去除色、味、余氯和有机物,其主要作用方式是吸附,活性炭是一种人工制成的吸附剂。
活性碳过滤器广泛用于生活用水及食品工业、化工、电力等行业的水的预处理。由于活性炭具有发达的细孔结构和巨大的比表面积,因此对水中的溶解性有机物,如苯类,酚类化合物等具有很强的吸附能力,而且对于用生物法和化学法很难去除的有机污染物,如色度、异臭、表面活性剂、合成洗涤剂和染料等都有较好的去除效果。粒状活性炭对水中的Ag^+,Cd^2+,CrO4^2-等离子去除率达85%以上。[3] 通过活性炭滤床后,水中悬固小于0.1mg/L,COD去除率一般为40%~50%,游离氯小于0.1mg/L。
反冲洗工艺
过滤器的反洗,主要是指过滤器在使用一定周期后,其滤料层截留和吸附一定量的杂物和污渍,这使得过滤器的出水水质下降,主要表征:过滤器的正常滤后水质变差,进水和出水管道的压力差增大,同时,单台过滤器的流量降低。
反冲洗的原理:水流逆向通过滤料层,使滤层膨胀、悬浮,借助水流的剪切力和颗粒的碰撞摩擦力清洗滤料层使滤层内的污物脱离并随反洗水排出。
反冲洗的必要性
在过滤过程中,原水中的悬浮物等被滤料层截留吸附并不断地在滤料层中积累,于是滤层孔隙逐渐被污物堵塞,在滤层表面形成滤饼,过滤水头损失不断增加。当达到某一限度时,滤料需进行清洗,使滤层恢复工作性能,继续工作。 过滤时由于水头损失增加,水流对吸附在滤料表面的污物的剪切力变大,其中有些颗粒在水流的冲击下移到下层滤料中去,最终会使水中的悬浮物含量不断上升,水质变差,当杂质透过滤层时,过滤器失去过滤效果。因此,到一定程度时,需要清洗滤料,以便恢复滤料层的纳污能力。 污水中的悬浮物中含有大量有机物,长期滞留在滤层中会导致滤层中细菌微生物富集繁殖,发生厌氧腐败现象,需定期清洗滤料。
反冲洗参数控制和确定
膨胀高度:反冲洗时,为了保证滤料颗粒有足够的间隙使污物迅速随水排出滤层,滤层膨胀率应大一些。但膨胀率过大时,单位体积中滤料的颗粒数变少,颗粒碰撞的机会也减少,所以对清洗不利。双层滤料,膨胀率为40%----50% 。注意:在生产运行中,对滤料的填充高度、膨胀高度等随机进行检查,因为正常反洗过程中,会有部分滤料的跑失或磨损,需要进行补充。相对稳定的滤层,有以下优点:确保过滤水质的稳定,保证反冲洗的效果。 反洗水量和压力:一般设计要求,反洗水的强度为40 m3/(m2•h),反洗水的压力≤0.15 MPa。 反洗空气量和压力:反洗空气的强度为15 m /(m •h),反洗空气的压力≤0.15 MPa。注意:在反洗过程中,通入的反洗空气汇集于过滤器的顶部,大部分应通过双孔排气阀排出。日常生产中。需经常检查排气阀的通畅性,主要表征在阀球升降的自由度上。
气水联合反洗
先用空气冲洗,再用水反冲洗:首先将滤池水位降至滤层表面上100 mm处,通入空气数分钟,然后用水反冲洗。适用于表面污染重而内部污染轻的滤池。 注意:相应的阀门,关闭必须到位;否则,水位降到滤层表面以下时,滤层的上部没有水的浸润,颗粒的上下扰动过程中,污物不能有效排出,反而会往滤层深处移动。 空气和水联合反洗:从静止滤层下部同时送入空气和反洗水,空气在上升过程中在砂层内合形成大气泡,遇到滤料时又变成小气泡,同时对滤料表面产生擦洗作用;反洗水顶松滤层,使滤料呈悬浮状态,利于空气对滤料的擦洗。反洗水和反洗空气的膨胀作用相互叠加,比单一进行时,作用更强。 注意:水的反洗压力和空气的反洗压力和强度不同,应注意先后顺序,避免反洗水进入空气管道。 在气水联合反洗结束后,停止进入空气,反洗水保持相同的流量,继续冲洗3 min ~5 min,即可去除遗留在滤床中的气泡。 备注:可留意顶部双孔排气阀的状态。
滤料板结原因分析
截留在滤层上表层的污物,如果在一定周期内,不能有效地去除,在随后的反洗过程中,如果反洗空气的分布不均匀会导致膨胀高度不均匀,随着反洗空气的搓动,搓动量小的地方,滤料表面的油污等杂质不能有效去除,在投入下一正常滤水周期后,局部负荷增大,杂质会从表面沉入内部,球团逐渐增大,并同时向过滤器的填充深度内延伸,直至整个过滤器失效。 备注:实际运行中,反洗空气不均匀的现象经常出现,主要是由于底部布气管道的穿孔、局部滤帽的堵塞或损坏或是栅管间距的变形等原因引起。 滤层的表面滤料颗粒细小,反冲洗时相互碰撞机会少,动量小,所以不易清洗干净。附着的砂粒易结成小泥球。当反冲洗结束滤层重新级配时,泥球就进入下层滤料中,随着泥球的长大不断向深处移动。 原水中所包含的油,截留在过滤器内,经反洗并残余部分,日积月累,是导致过滤器滤料板结的主要因素。何时进行反洗可根据原水的水质特点和出水水质要求,采用限定水头损失、出水水质或过滤时间等标准来确定。
过滤器加工和验收工序的注意事项
要求出水槽与滤板的平行允差不大于2 mm。 滤板的水平度及不平度均小于±1.5 mm。滤板的结构,采用整体加工最优。当筒体直径较大时,或受原材料、运输等方面制约时,也可采用两瓣拼接成形。 对滤板和筒体各接合部位的合理处理,对空气反洗环节尤为重要。
①为消除因滤板加工和筒体卷制等方面误差造成的滤板和筒体的径向间隙,一般采用圆弧环板逐段焊接。接触部位必需采用满焊。 ②中心管道和滤板的径向间隙处理方法同上。
备注:上述措施,确保了过滤和反洗只能通过滤帽或排管间隙连通。同时,也就保证了反洗和过滤通道的分布均匀性。

发表评论 取消回复